-
800.989.4243
(US and Canada)
-
214.340.9436
Make A Call

Accurate material estimates are crucial for any construction project. Concrete takeoff software allows contractors, estimators, and project managers to measure areas, quantities, and materials efficiently. By automating calculations, this software reduces errors and ensures estimates are reliable, saving both time and resources. Whether managing a small renovation or a large commercial project, contractors can quickly determine material needs, track quantities, and produce precise cost projections without manual calculations. Streamlining the estimating workflow allows teams to focus on planning, scheduling, and executing the project efficiently. Contractors also benefit from clear audit trails, so every measurement and adjustment is documented for accountability and review.
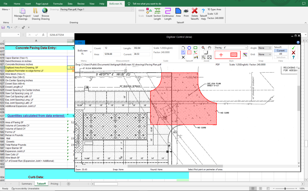
Vertigraph’s software supports multiple file types, including PDFs, DWGs, DXFs, and TIFs. You can open project drawings directly in the platform, eliminating time lost on file conversions or formatting issues.
Measurements can be taken directly from digital plans, ensuring that quantities are accurate for every area, length, and volume. Users can select layers, snap to specific points, and isolate objects to get precise counts, especially for detailed elements like curbs, flooring, or concrete pours. With visual cues and clear layout tools, users can mark different materials, sections, or trades for clarity, making collaboration with teams more effective. Contractors can also revisit previously measured areas and update quantities without disrupting other parts of the estimate.
Projects with complex designs or varying scales require precise volume measurements. The software allows contractors to calculate cut-and-fill quantities, cross-sections, and material volumes with confidence.
By accommodating different vertical and horizontal scales, estimators can handle diverse drawings without compromising accuracy. Automated calculations reduce human error, making estimates more dependable and supporting better project planning. For example, when calculating excavation for a site with uneven terrain, the software can measure volumes for each section automatically, adjusting for scale differences. This ensures that materials such as concrete, gravel, or soil are accurately quantified for purchasing and scheduling purposes.
Managing multiple files or project pages can be overwhelming. With the Drawing Manager feature, users can organize all project drawings, annotate areas, and open multiple files simultaneously.
Color-coded markups differentiate materials or sections, providing a clear overview and ensuring nothing is missed. This also helps subcontractors understand their scope without needing to interpret complex plans. Every annotation and adjustment is tracked, giving contractors a complete audit trail for transparency and accountability. The Drawing Manager also allows users to enter project-specific notes, document changes, and track revisions, making it simple to maintain organized records across multiple projects.
The software is built for contractors of all sizes. Solo builders, independent subcontractors, and larger teams can all benefit from cloud-enabled features, shared templates, and instant updates.
Users can make adjustments without redoing prior work, share accurate data with crews or clients, and maintain control over schedules and costs. For teams handling multiple projects simultaneously, the ability to store and access drawings in one centralized location saves hours of administrative work. The intuitive interface requires minimal training, letting teams focus on construction rather than mastering software. Even less experienced team members can quickly learn to use the software for takeoffs and measurements.
Manual calculations often lead to errors and delays. By integrating digital measurements, visual markups, and real-time calculations, construction takeoff software accelerates the estimating process while improving precision.
Contractors can complete takeoffs faster, avoid miscalculations, and confidently submit estimates that match project specifications. The software also helps in tracking materials, labor, and equipment quantities, providing a comprehensive view of project costs. With features like auto-scaling, continuous length measurements, and point snapping, users can measure complex layouts accurately without multiple rechecks. This level of precision reduces wasted materials and ensures bids are competitive yet profitable.
Using takeoff software early in the project allows contractors to plan procurement, labor, and scheduling more effectively. Accurate material estimates prevent over-ordering and delays, keeping projects on budget and on schedule. The software also allows contractors to simulate different scenarios, such as changing quantities or materials, to understand potential impacts on project costs before making decisions.
By consolidating all takeoff data, estimates, and drawings in one platform, project managers gain complete visibility into project requirements. This helps in preparing bids, tracking actual versus estimated usage, and maintaining transparency with clients.
For contractors seeking reliable construction material takeoff software, Vertigraph, Inc. provides a complete solution. Our software enables precise measurements, organized drawing management, and real-time calculations. With features designed to simplify takeoffs, calculate volumes, and manage files efficiently, Vertigraph ensures contractors save time, reduce errors, and maintain confidence in every estimate. From small projects to complex commercial builds, our tools are practical, easy to use, and designed to meet real construction needs. Contractors benefit from Excel integration, color-coded visuals, and cloud accessibility, making project management faster and more efficient.
Explore Vertigraph, Inc. today to see how our software can simplify estimating, improve accuracy, and keep your projects running smoothly from start to finish.
Construction takeoff software helps contractors measure materials, areas, and volumes from digital plans quickly and accurately.
By automating calculations and supporting various drawing formats, the software reduces human error and provides reliable material estimates.
Yes, it calculates cross-sections, volumes, and multiple scales, making it suitable for both small and large construction projects.
Vertigraph’s BidScreen XL, allow direct measurements in Excel for faster documentation and simplified workflow.
General contractors, subcontractors, estimators, and project managers can all save time, reduce errors, and improve planning efficiency.