Quantity takeoff, without leaving Excel.
BidScreen XL is the only Excel-based takeoff software. Measure from PDF or CAD drawings and every quantity writes straight into the cell you drop it into. SiteWorx/OS handles cut and fill in 3D. Trusted by contractors across the United States.
- Licensing
- Perpetual & lease
- Compatibility
- Excel 2016 +
- SiteWorx/OS
- Cut & fill 3D
Vertigraph software has supported thousands of contractor bids, from single-family builders to DOT paving crews.
Two software products. One add on.
BidScreen XL handles takeoff in Excel. SiteWorx/OS handles cut and fill in 3D. Drawing Compare adds revision diffs when you need them. Buy perpetual, lease by the year, or roll into a multi seat Concurrent License pool.
- bidscreen xlExcelBidScreen XL
Excel add in for measuring areas, lengths, and counts directly from PDF, DWG, DXF, or TIF drawings. Every quantity lands as a formula in your estimating workbook.
$750 perpetual · $400 / yr leaseLearn more - siteworx osSiteWorx/OS
Triangulated ground and design surfaces from drawing contours. Calculate earthwork, balance cuts, export grader ready files.
$2,795 perpetual · $1,295 / yr leaseLearn more
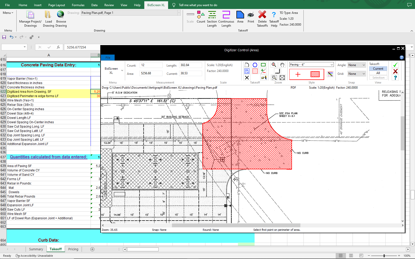
Measure from drawings without leaving Excel.
BidScreen XL installs as an add in, a new ribbon tab on the Excel you already have. Count symbols, trace polylines, snap to vector edges, cross section cuts. Every quantity lands as a formula in the cell you drop it into, so your estimate stays auditable.
- Native Excel add in, works with Excel 2016 and later, 32 bit or 64 bit
- PDF, DWG, DXF, and TIF input
- Color-coded takeoffs with pattern fills
- Per-sheet scales, including cross section verticals
- Free 14 day trial with the full feature set

Cut and fill, from PDF to 3D surface.
SiteWorx/OS builds the existing and proposed surface from the elevations on your plans, then reports the volume difference as cut and fill. Works with PDF, vector PDF, AutoCAD DWG, and DXF.
- Existing + proposed surfaces from contours, points, and area elevations
- Cut, fill, sub-grade, and topsoil strip / respread quantities
- 3D model, cross sections, and grid views for review
- Export reports to Excel, Word, PDF; surface points to CSV or DWG
A portal built for estimating teams.
Manage licenses, serials, Full Serve renewals, and installer downloads without phoning in. Concurrent License Manager lets a pool of seats float across the estimators who need them today.
- LicensesOne view, every seat
- RenewalsAuto-reminders for Full Serve
- SerialsCopy or rotate in one click
- DownloadsSigned installers, always the latest
Estimators who don’t have time for bad software.
I've used many programs in the past and BidScreen XL is the best. It is quick and easy and does exactly what I need and want with no hassles.
Of all the programs I researched, SiteWorx/OS was the easiest to use and the price was good. I estimate 2 to 3 jobs per week and I could not manage without it.
Start estimating in Excel today.
Fully-featured 14 day trial. No credit card, no subscription trap.
